Recents in Beach

ACCESS FREE ENTIRE CAD LIBRARY DWG FILES Download free AutoCAD drawings of architecture, Interiors designs, Landscaping, Constructions detail, Civil engineer drawings and detail, House plan, Buildings plan, Cad blocks, 3d Blocks, and sections.
Showing posts with the label 3d HouseShow all
3 D MODEL HOUSE PLAN
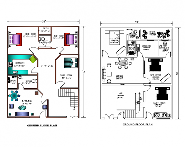
3D DESIGN OF GROUND FLOOR LAYOUT PLAN DETAILS OF HOUSE DWG FILE
3D HOUSE MODEL DESIGN IN DWG FILE

MORE CATEGORIES .. free cad files and 3d block