+Upload File
JOIN CHAT
About Us
Contact Us
Install
HELP
Categories
BUYING GUIDE
PROJECTS
Videos
DONATE
Help
Categories
Buying Guide
PROJECTS
Videos
CNC FILE
Recents in Beach
ACCESS FREE ENTIRE CAD LIBRARY DWG FILES
Download free AutoCAD drawings of architecture, Interiors designs, Landscaping, Constructions detail, Civil engineer drawings and detail, House plan, Buildings plan, Cad blocks, 3d Blocks, and sections.
Home
Autocad
Interiors drawings CAD files
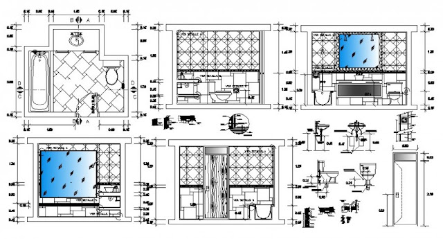
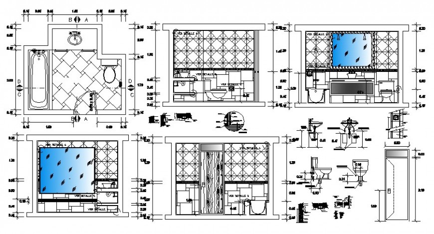
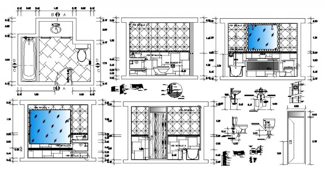
BATHROOM PLAN WITH DETAIL PLAN AND SECTION DRAWING IN AUTOCAD
.
BATHROOM PLAN WITH DETAIL PLAN AND SECTION DRAWING IN AUTOCAD
Tags:
Autocad
Bathroom and Toilet Interiors and detail
Free DWG
Interiors drawings CAD files
Bathroom plan with detail plan and section drawing in autocad which includes bathroom units details such as water closet washbasin and bath-tub details. DImension and different sections details are also provided.
Download
Modern House Plan [DWG]
Tuesday, August 06, 2024
Different Structural Details [DWG]
Thursday, June 15, 2023
VARIOUS VEHICLE TURNING RADIUS /CIRCLES [DWG, PDF]
Thursday, February 11, 2021
House Electrical Installation [DWG]
Saturday, February 20, 2021
AutoCAD Blocks for HVAC Design [DWG]
Wednesday, January 06, 2021
+900 Free Autocad Hatch Patterns [PAT, DWG]
Saturday, January 30, 2021
House plumbing DWG
Tuesday, October 20, 2020
Structural Steel Connections [DWG]
Thursday, June 15, 2023
Hospital Project [DWG]
Tuesday, March 16, 2021
Shopping Mall, Office, and Leisure [DWG]
Thursday, June 15, 2023
How To Download Files
DOWNLOAD OUR APPS
Application ACCESS FREE ENTIRE CAD LIBRARY DWG FILES
Be the first of your friends to like this
Contact Form
Name
Email
*
Message
*