Recents in Beach

ACCESS FREE ENTIRE CAD LIBRARY DWG FILES Download free AutoCAD drawings of architecture, Interiors designs, Landscaping, Constructions detail, Civil engineer drawings and detail, House plan, Buildings plan, Cad blocks, 3d Blocks, and sections.
.

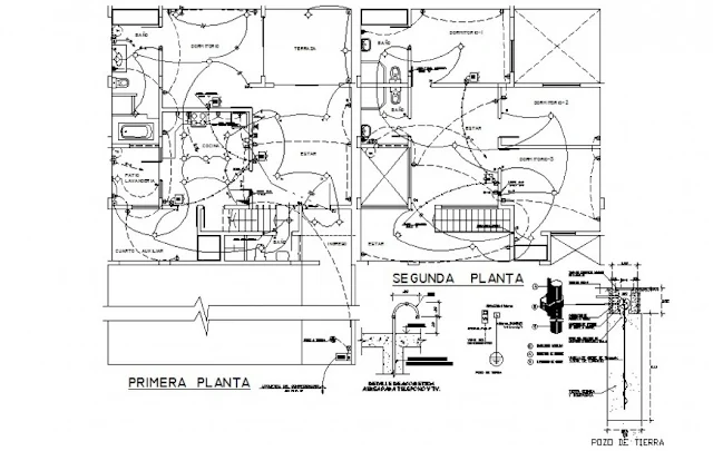
ELECTRICAL INSTALLATION INTERIOR IN HOUSE DRAWING IN AUTOCAD


Electrical installation interior in house drawing in autocad which includes electrical wirings details with earthing wire details. Floor level and house plan details are also included in the drawing. Dimension and circuit flow diagram is also shown in the drawing.


Modern House Plan [DWG]
Different Structural Details [DWG]
VARIOUS VEHICLE TURNING RADIUS /CIRCLES [DWG, PDF]
House Electrical Installation [DWG]
 AutoCAD Blocks for HVAC Design [DWG]
+900 Free Autocad Hatch Patterns [PAT, DWG]
House plumbing DWG
Structural Steel Connections [DWG]
Hospital Project [DWG]
Shopping  Mall, Office, and Leisure [DWG]