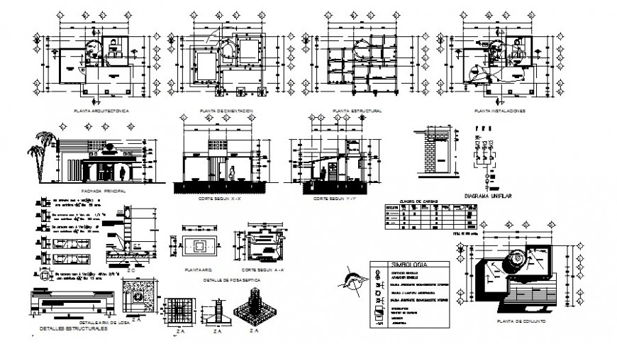
Municipal agency government building detailed architecture project that includes a detailed view of main elevation and section details with flooring view with doors and windows view and staircase view details, balcony view with wall design, dimensions and roof or terrace view, electrical installation and sanitary installation details, isometric plan with layout plan details, structure details and much more of building details.



