Cultural Architecture, Ciudad de Mexico Museum, Mexico
Located on a triangular site within the Polanco area of Mexico City, this new museum building exhibits part of one of the largest private collections of contemporary art in Latin America – Colección Jumex – and is part of a wider urban redevelopment. Overlooked by large commercial buildings, the constrained site is delineated by the major street Miguel de Cervantes Saavedra, the Ferrocarril de Cuernavaca railway line, and an adjacent property to the east. The extremely individual quality of the neighboring buildings overrides any attempt to integrate the new museum within this particular urban context.
|
| © Simon Menges |
The absence of a discernible streetscape or coherent aesthetic into which the project could be comfortably inscribed therefore offered a rare opportunity to create a distinct building that simultaneously contributes to the larger context. Heading the triangular park, the building can be described as a freestanding pavilion that corresponds to the eclectic nature of the neighboring buildings, which include the Museo Soumaya and the underground Teatro Cervantes. The mass of the building responds to the non-orthogonal plan of the site, which it exploits to provide the maximum footprint while delivering the program within the constraints of local planning requirements.
|
|
Section © David Chipperfield Architects
|
The Fundación Jumex’s main administration and operative headquarters, as well as the collection’s storage facilities, library, and exhibition space will remain at the existing premises in Ecatepec. The new building provides an exhibition space for the collection closer to a wider audience in Mexico City. The museum will present a program of temporary exhibitions, including works from the ever-expanding Colección Jumex. As such, the gallery spaces are expected to accommodate diverse display techniques to suit both in-house and guest curators with differing approaches.
|
|
|
With an informal atmosphere, the building will not only house exhibitions but will also provide a platform for discourse and educational activities. Catering for a range of visitors – from those who have never visited a gallery to international scholars and seasoned gallery-goers – it is for the enjoyment of both the local community and destination tourists alike. Further activities including lectures, talks, debates, conferences, and film screenings will be conducted in the gallery rooms rather than in separate purpose-designed spaces.
The primary exhibition space is located on the two upper floors and optimizes the use of daylight for the top floor gallery. The lower floors comprise a series of spaces that provide more social and community-based aspects of the program. An open-sided multi-function loggia sits between the upper galleries and the ground floor and allows visitors to enjoy elevated views of the landscape and the urban life of the street.
|
|
|
The format of the floor plates and the position of the building cores provide large singular rooms that can be easily subdivided into two or more individual spaces. A distinctive saw-tooth roof creates a rhythmic geometry that defines the third-floor gallery. Consisting of a steel structure with west-facing roof lights and a horizontal diffuser layer, the roof distributes light evenly to illuminate the artworks and create an ambient light for space. The light can be moderated to meet specific curatorial requirements.
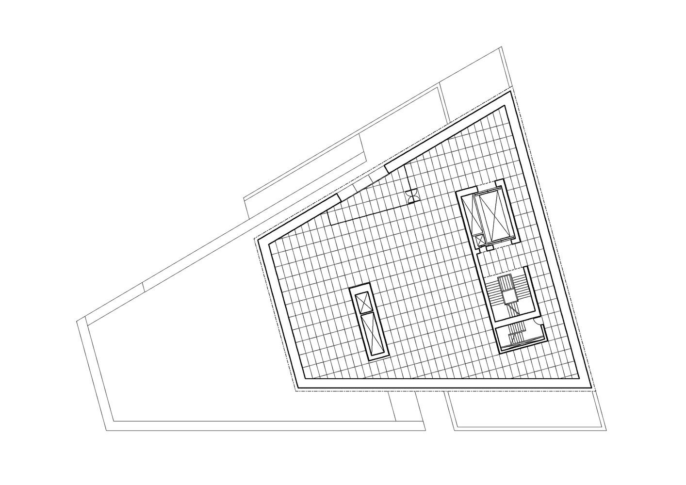
|
| Ground Floor Plan © David Chipperfield Architects |
The lower ground floor houses the art storage facilities, plant rooms, administrative offices, and a multi-purpose room. Four further stories below provide ample car parking. Resting on fourteen columns the whole property sits on a raised plinth, allowing the ground floor to merge with the public plaza. This concept of maximizing publicly accessible space continues from the plaza into the loggia on the first floor of the building.
|
|
|


.webp)
.webp)
.webp)
.webp)
.webp)
.webp)
.webp)
.webp)
.webp)
.webp)
-2.webp)
.webp)
-2.webp)
-2.webp)
.webp)
.webp)
-2.webp)
-2.webp)
-2.webp)
-2.webp)
.webp)

